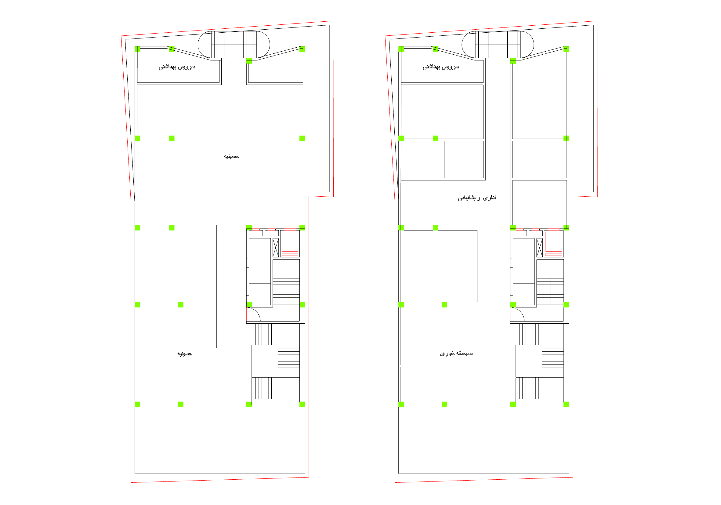
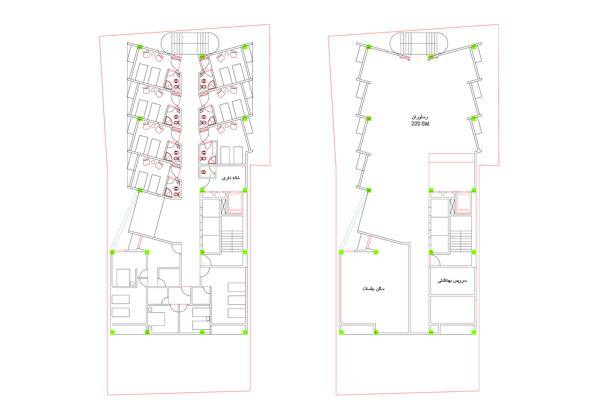
زائرسرای منوّر چهارده معصوم (ع) مشهد مقدس

مساعدت در احداث بنای جدید
زائرسرای منوّر چهارده معصوم (ع) مشهد مقدس



Instagram

جلسه گزارش پیشرفت طراحی کانسپت و امور مربوط به معماری تا دقایقی دیگر در محل استودیو پنج او هفت برگزار می گردد.

هم اکنون اعضای محترم استودیو در حال اعمال آخرین اصلاحات بوده و آماده حضور در جلسه و ارائه طرح اولیه می باشند.

  • ۹۳/۰۶/۲۵
  • اطلاع رسانی

نظرات (۰)

هیچ نظری هنوز ثبت نشده است

ارسال نظر

ارسال نظر آزاد است، اما اگر قبلا در بیان ثبت نام کرده اید می توانید ابتدا وارد شوید.
شما میتوانید از این تگهای html استفاده کنید:
<b> یا <strong>، <em> یا <i>، <u>، <strike> یا <s>، <sup>، <sub>، <blockquote>، <code>، <pre>، <hr>، <br>، <p>، <a href="" title="">، <span style="">، <div align="">
تجدید کد امنیتی